彈簧微啟封鎖式高壓寧靜閥
一、彈簧微啟封鎖式高壓寧靜閥 概述
A41Y-160、320型螺旋彈簧微啟禁封式高電壓恬淡閥配伍于日常任務溫暖≤200℃風氣、氮氫混雜氣、水等媒介的極品準備和壓縮空氣管道上。A41Y-160P/320P、A41Y- 160R/320R型配伍于日常任務溫暖≤200℃有侵蝕作用性的有機廢氣氣體或夜體媒介的極品準備和壓縮空氣管道上,是 過壓掩體裝配線。毗連法蘭盤按JB/T2769-92的規范起來。
二、彈簧微啟封鎖式高壓寧靜閥 布局簡述
1、彈簧微啟式寧靜閥具備布局簡略、密封機能好、開啟壓力精確、排放才能大、回座壓差小、調劑便利等特色。
2、噴嘴型閥座:閥座為位伐爾噴嘴型閥座,蒸汽流經閥座出口處時到達音速,排放系數大,閥座密封面堆焊鈷鉻鎢硬質合金,耐磨抗沖蝕,壽命長。
3、熱彈性閥瓣:閥瓣設想為熱彈性布局,操縱其在介質壓力下細小的變形,進步密封才能,降服寧靜閥在介質壓力下鄰近整定壓力時的前泄景象。閥瓣密封面接納進步前輩的激光淬火手藝,進步了硬度、耐磨性、抗沖抗性。
4、調理螺母:經由過程調劑調理螺母,調劑彈簧緊縮量,使閥門可以或許很便利、很敏捷地取得精確的整定壓力。
5、背(bei)壓(ya)調劑套:調劑閥瓣背(bei)壓(ya)的幫助(zhu)機構,經由過(guo)程背(bei)壓(ya)調劑套調劑,可取得適合的回座壓(ya)差(cha)。上調時(shi),使閥門背(bei)壓(ya)下降。下調時(shi),使閥門背(bei)壓(ya)進(jin)步。
 |
 |
彈簧微啟封鎖式高壓寧靜閥 |
彈簧微啟封鎖式高壓寧靜閥 |
三、彈簧微啟封鎖式高壓寧靜閥 裝置申明
1、寧靜閥必須垂直裝置,并最好間接裝置在容器或管道的討論上。討論內徑應不小于寧靜閥的入口通徑。
2、寧靜閥的出口必須裝設恰當的收縮節,以避免排放管的熱收縮給寧靜閥帶來不應有的熱應力。排放管內徑應比閥門出口直徑大,長度盡能夠短,避免拐彎。排放管及收縮節分量不應感化在寧靜閥上,應牢固在修建上。排放管的中間線與閥體的中間線間距離盡能夠的短。對每臺寧靜閥都應零丁裝設排放管。
3、消(xiao)聲器(qi)的出口處(chu)要有充足的面積,避免(mian)發生背壓影響閥門的排放才能。
四、彈簧微啟封鎖式高壓寧靜閥 首要零部件資料
| NO |
整機稱號 |
A41Y-160資料 |
A41Y-160P資料 |
A41Y-160R資料 |
| 1 |
法蘭 |
35/35CrMoA |
2Cr13 |
1Cr18Ni9Ti |
| 2 |
閥座 |
2Cr13 |
1Cr18Ni9Ti |
1Cr18Ni12Mo2Ti |
| 3 |
閥體 |
35/40 |
1Cr18Ni9Ti |
1Cr18Ni12Mo2Ti |
| 4 |
閥瓣 |
2Cr13 |
1Cr18Ni9Ti |
1Cr18Ni12Mo2Ti |
| 5 |
導向套 |
2Cr13 |
1Cr18Ni9Ti |
1Cr18Ni12Mo2Ti |
| 6 |
彈簧 |
50CrVA |
50CrVA包覆氟塑料 |
50CrVA包覆氟塑料 |
| 7 |
閥桿 |
2Cr13 |
1Cr18Ni9Ti |
1Cr18Ni12Mo2Ti |
| 8 |
閥蓋 |
ZG230-450 |
1Cr18Ni9Ti |
1Cr18Ni9Ti |
| 9 |
調劑螺桿 |
45 |
2Cr13 |
2Cr13 |
| 10 |
閥帽 |
ZG200-400 |
1Cr18Ni9Ti |
1Cr18Ni9Ti |
|
閥座、閥瓣密封面 |
堆焊Co基硬質合金 |
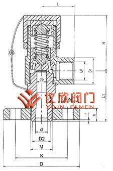
五、彈簧微啟封鎖式高壓寧靜閥 形狀尺寸和毗連尺寸
 |
 |
彈簧微啟封鎖式高壓寧靜閥布局圖 |
彈簧微啟封鎖式高壓寧靜閥布局圖 |
| 型號 |
公稱
通徑 |
do |
d |
M |
D |
K |
Z-¢d |
b |
d1 |
M1 |
D1 |
K1 |
Z1-¢d1 |
b1 |
L |
L1 |
≈H |
| A41Y-160
(單法蘭) |
15 |
8 |
20 |
M24×2 |
95 |
60 |
3-18 |
20 |
/ |
M33×2 |
36 |
/ |
/ |
/ |
50 |
80 |
85 |
| 20 |
10 |
25 |
M27×2 |
95 |
60 |
3-18 |
20 |
/ |
M33×2 |
48 |
/ |
/ |
/ |
50 |
80 |
85 |
| 25 |
12 |
28 |
M33×2 |
105 |
68 |
3-18 |
20 |
/ |
M33×2 |
48 |
/ |
/ |
/ |
50 |
80 |
85 |
| A41Y-160 |
10 |
8 |
18 |
M24×2 |
95 |
60 |
3-18 |
20 |
29 |
M42×2 |
115 |
80 |
4-18 |
22 |
95 |
100 |
261 |
| 15 |
8 |
20 |
M24×2 |
95 |
60 |
3-18 |
20 |
29 |
M42×2 |
115 |
80 |
4-18 |
22 |
95 |
100 |
261 |
| 20 |
10 |
27 |
M33×2 |
105 |
68 |
3-18 |
20 |
29 |
M42×2 |
115 |
80 |
4-18 |
22 |
95 |
100 |
261 |
| 25 |
12 |
28 |
M33×2 |
105 |
68 |
3-18 |
20 |
50 |
M64×3 |
165 |
115 |
6-26 |
32 |
130 |
135 |
285 |
| 32 |
12.14.16 |
37 |
M42×2 |
115 |
80 |
4-18 |
22 |
50 |
M64×3 |
165 |
115 |
6-26 |
32 |
130 |
135 |
285 |
| 40 |
20 |
47 |
M52×2 |
165 |
115 |
6-26 |
28 |
65 |
M80×3 |
200 |
145 |
6-29 |
40 |
165 |
165 |
350 |
| 50 |
25 |
58 |
M64×3 |
165 |
115 |
6-26 |
32 |
80 |
M100×3 |
225 |
170 |
6-33 |
80 |
165 |
165 |
380 |
| A41Y-320 |
10 |
8 |
18 |
M24×2 |
95 |
60 |
3-18 |
20 |
29 |
M42×2 |
115 |
80 |
4-18 |
22 |
95 |
100 |
261 |
| 15 |
8 |
27 |
M33×2 |
105 |
68 |
3-18 |
20 |
29 |
M42×2 |
115 |
80 |
4-18 |
22 |
95 |
100 |
261 |
| 20 |
10 |
30 |
M36×2 |
110 |
75 |
3-18 |
20 |
29 |
M42×2 |
115 |
80 |
4-18 |
22 |
95 |
100 |
261 |
| 25 |
12 |
35 |
M42×2 |
115 |
80 |
4-18 |
22 |
50 |
M64×3 |
165 |
115 |
6-26 |
32 |
130 |
135 |
285 |
| 32 |
12.14.16 |
41 |
M48×2 |
135 |
95 |
4-22 |
25 |
50 |
M64×3 |
165 |
115 |
6-26 |
32 |
130 |
135 |
285 |
| 40 |
20 |
58 |
M64×2 |
165 |
115 |
6-26 |
32 |
65 |
M80×3 |
200 |
145 |
6-29 |
40 |
165 |
115 |
350 |
| 50 |
25 |
70 |
M80×2 |
200 |
145 |
6-29 |
40 |
80 |
M100×3 |
225 |
170 |
6-33 |
50 |
165 |
165 |
380 |